Минитрактор из УАЗа — изготовление, сборка, видео, чертежи

Доброго времени суток!

Решил показать трактор, который я и отец собрали около 10 лет назад.Так получилось, что с детства лет с 12 я принимал участие в создании и ремонте самодельных тракторов.Через мои руки за это время прошло 4 трактора, два из которых были созданы с нуля.

Первый двигатель УД-2, коробка ГАЗ-51 мост ГАЗ-66 укороченный.

Второй изначально ДВС от мотоколяски, редуктор с реверсом неизвестного происхождения, и два моста от уаза, также укороченные. Впоследствии двигатель был заменен на ижевский с водяным охлаждением.

Третий ДВС от Т-25, коробка ГАЗ-53, мост ГАЗ-66.На этом была гидравлика, навеска от какого-то беларуса, и вом.

Ну и последний на мой взгляд самый интересный о котором и пойдет речь.

За основу был взят двигатель от переднеприводного легкового автомобиля (вроде как датсун), в сборе с МКПП.На автомобиле он установлен поперечно.

Этот двигатель с кпп был установлен продольно и выходы на приводы, через карданы подключены к двум укороченным мостам от уазика.Мосты обрезались с таким расчетом, чтобы редукторы получились почти напротив выходов из коробки, то есть смещены вправо.После первых испытаний в реальных « боевых» условиях стало ясно, что дифференциал в коробке очень сильно мешает, и после недолгих раздумий было принято решение просто его заварить, что и было сделано.

Сей аппарат постоянно эксплуатируется до сих пор и зарекомендовал себя как надежный и неприхотливый в эксплуатации, мощный и проходимый.

Достоинством данной компоновки также считаю простота изготовления, и возможность различных вариаций в выборе двигателя, да и наверное мостов.Благо сейчас не проблема найти на любой вкус и цвет, любой мощности, и вида топлива.

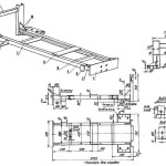
Рама сварена из швеллера, размер точно не помню.Не претендую на оригинальность решения, но я пока подобной конструкции не встречал,Вот и решил показать, может кому будет интересно и сподвигнет на создание подобного аппарата.

Если кому-то интересно, спрашивайте, с удовольствием отвечу на вопросы.Извиняюсь за качество фотографий.

Еще несколько фоток.

Наличие самодельного минитрактора в домашнем хозяйстве существенно облегчает выполнение большого объема хозяйственных задач. Одним из главных его достоинств является экономичность и маневренность в управлении на ограниченной территории.

Достаточно оборудовать самодельный минитрактор и все к нему дополнительными приспособлениями, и он станет незаменимым помощником в обработке небольших земельных участков.В современных условиях ведения бизнеса связанного с производством сельскохозяйственных продуктов на приусадебных хозяйствах, минитрактор является эффективной и экономичной техникой. Ведь купить новую спецтехнику на начальном этапе не каждому по карману, а соорудить ее из подручных агрегатов вполне под силу тем, кто владеет базовыми знаниями слесарного мастерства.Вариантов изготовления самодельных минитракторов достаточно много. Одни самодельные изделия сконструированы на базе двигателей от старых отечественных или зарубежных автомобилей и мотоциклов. Другие собраны из уже имеющейся техники типа мотоблок.

Самодельный минитрактор включает в себя сложный комплекс систем и механизмов тесно взаимосвязанных между собой. Прежде чем начать работу необходимо определиться с будущей конструкцией самоделки. Поэтому наличие под руками чертежных материалов существенно облегчит его сборку.Чтобы осуществить сборку качественно, от умельца потребуется изучение базовых знаний устройства, а также наличие целого ряда узлов (трансмиссии, силового агрегата) и механизмов. Кроме того, наличие макета и чертежей будет служить ориентиром в направлении создания самодельного устройства.

Содержание

Конструкционные особенности самодельных устройств

В основе конструкции изделия чаще всего используется сварная рама, обеспечивающая хорошую прочность, и надежность. Возникающие в ходе сборки сложности, каждый мастер решает по своему, основываясь на собственных идеях, либо практических советах по сборке минитрактора самоделки видео, полученные из интернет ресурсов.Все узлы и механизмы, включая коробку передач, редуктор и колеса в основном взяты с отработавшей техники. Возможен также вариант доработки либо переработки уже имеющейся в бывшем употреблении техники. Такой подход существенно сокращает расходы на создание нового устройства, которое будет использоваться в конкретном целевом направлении.Кроме компактности и универсальности самодельной машины, ее достоинством также является минимальный расход топлива, невысокая стоимость, возможность дальнейшего усовершенствования, а также быстрой замены узловых механизмов и навесного оборудования. Из недостатков можно отметить низкую эффективность работы на больших сельскохозяйственных территориях.

Некоторые аспекты переделки

Когда возникла потребность в тракторе, всегда можно реализовать идею собственного варианта этой машины из подручных материалов. При этом стоимость переделки будет существенно ниже, чем стоимость готовой продукции. Так, минитрактор из Нивы будет оптимальным помощником на огороде, поскольку автомобиль имеет формулу привода 4х4. Однако следует помнить некоторые юридические моменты:

  1. В случае если приобретается старый автомобиль, следует провести переоформление согласно действующим законам. То же самое касается и при передаче автомобиля по договорам дарения.
  2. После проведения перерегистрации необходимо уведомить сотрудников ГАИ о планируемых переделках. При этом они обязаны сообщить механизм по сдаче государственных номеров со старого транспортного средства (автомобиля).
  3. По завершении изготовления минитрактора необходимо поставить новое транспортное средство (трактор) на учет с получением номерного знака. При этом если данное транспортное средство будет использоваться только в сельской местности, то может быть проведена упрощенная процедура постановки на учет данного транспортного средства.

Однако люди не выполняют данных предписаний и активно используют свои переделки по назначению. Справедливости ради необходимо отметить и то, что сотрудники правоохранительных органов часто закрывают глаза на эти правонарушения, поскольку они незначительны (особенно если трактор не покидает территорию села и не становится участником дорожно-транспортного происшествия).

Но чтобы избежать и существенно снизить вероятность появления проблем с правоохранителями, рекомендуется пройти процедуру перерегистрации. В случае если самодельный трактор с двигателем ВАЗ используется только на одном земельном участке, рекомендуется предварительно списать номера двигателя автомобиля и номер кузова — это в будущем позволит упростить процедуру идентификации двигателя (при возникновении проблем с сотрудниками ГАИ).

Что такое минитрактор

Схема устройства минитрактораПосле первых испытаний в реальных « боевых» условиях стало ясно, что дифференциал в коробке очень сильно мешает, и после недолгих раздумий было принято решение просто его заварить, что и было сделано.

Сей аппарат постоянно эксплуатируется до сих пор и зарекомендовал себя как надежный и неприхотливый в эксплуатации, мощный и проходимый.

Достоинством данной компоновки также считаю простота изготовления, и возможность различных вариаций в выборе двигателя, да и наверное мостов.Благо сейчас не проблема найти на любой вкус и цвет, любой мощности, и вида топлива.

Рама сварена из швеллера, размер точно не помню.Не претендую на оригинальность решения, но я пока подобной конструкции не встречал,Вот и решил показать, может кому будет интересно и сподвигнет на создание подобного аппарата.

Если кому-то интересно, спрашивайте, с удовольствием отвечу на вопросы.Извиняюсь за качество фотографий.

Еще несколько фоток.

Наличие самодельного минитрактора в домашнем хозяйстве существенно облегчает выполнение большого объема хозяйственных задач. Одним из главных его достоинств является экономичность и маневренность в управлении на ограниченной территории.

Достаточно оборудовать самодельный минитрактор и все к нему дополнительными приспособлениями, и он станет незаменимым помощником в обработке небольших земельных участков.В современных условиях ведения бизнеса связанного с производством сельскохозяйственных продуктов на приусадебных хозяйствах, минитрактор является эффективной и экономичной техникой. Ведь купить новую спецтехнику на начальном этапе не каждому по карману, а соорудить ее из подручных агрегатов вполне под силу тем, кто владеет базовыми знаниями слесарного мастерства.Вариантов изготовления самодельных минитракторов достаточно много. Одни самодельные изделия сконструированы на базе двигателей от старых отечественных или зарубежных автомобилей и мотоциклов. Другие собраны из уже имеющейся техники типа мотоблок.

Самодельный минитрактор включает в себя сложный комплекс систем и механизмов тесно взаимосвязанных между собой. Прежде чем начать работу необходимо определиться с будущей конструкцией самоделки. Поэтому наличие под руками чертежных материалов существенно облегчит его сборку.Чтобы осуществить сборку качественно, от умельца потребуется изучение базовых знаний устройства, а также наличие целого ряда узлов (трансмиссии, силового агрегата) и механизмов. Кроме того, наличие макета и чертежей будет служить ориентиром в направлении создания самодельного устройства.

Содержание

Конструкционные особенности самодельных устройств

В основе конструкции изделия чаще всего используется сварная рама, обеспечивающая хорошую прочность, и надежность. Возникающие в ходе сборки сложности, каждый мастер решает по своему, основываясь на собственных идеях, либо практических советах по сборке минитрактора самоделки видео, полученные из интернет ресурсов.Все узлы и механизмы, включая коробку передач, редуктор и колеса в основном взяты с отработавшей техники. Возможен также вариант доработки либо переработки уже имеющейся в бывшем употреблении техники. Такой подход существенно сокращает расходы на создание нового устройства, которое будет использоваться в конкретном целевом направлении.Кроме компактности и универсальности самодельной машины, ее достоинством также является минимальный расход топлива, невысокая стоимость, возможность дальнейшего усовершенствования, а также быстрой замены узловых механизмов и навесного оборудования. Из недостатков можно отметить низкую эффективность работы на больших сельскохозяйственных территориях.

Некоторые аспекты переделки

Когда возникла потребность в тракторе, всегда можно реализовать идею собственного варианта этой машины из подручных материалов. При этом стоимость переделки будет существенно ниже, чем стоимость готовой продукции. Так, минитрактор из Нивы будет оптимальным помощником на огороде, поскольку автомобиль имеет формулу привода 4х4. Однако следует помнить некоторые юридические моменты:

  1. В случае если приобретается старый автомобиль, следует провести переоформление согласно действующим законам. То же самое касается и при передаче автомобиля по договорам дарения.
  2. После проведения перерегистрации необходимо уведомить сотрудников ГАИ о планируемых переделках. При этом они обязаны сообщить механизм по сдаче государственных номеров со старого транспортного средства (автомобиля).
  3. По завершении изготовления минитрактора необходимо поставить новое транспортное средство (трактор) на учет с получением номерного знака. При этом если данное транспортное средство будет использоваться только в сельской местности, то может быть проведена упрощенная процедура постановки на учет данного транспортного средства.

Однако люди не выполняют данных предписаний и активно используют свои переделки по назначению. Справедливости ради необходимо отметить и то, что сотрудники правоохранительных органов часто закрывают глаза на эти правонарушения, поскольку они незначительны (особенно если трактор не покидает территорию села и не становится участником дорожно-транспортного происшествия).

Но чтобы избежать и существенно снизить вероятность появления проблем с правоохранителями, рекомендуется пройти процедуру перерегистрации. В случае если самодельный трактор с двигателем ВАЗ используется только на одном земельном участке, рекомендуется предварительно списать номера двигателя автомобиля и номер кузова — это в будущем позволит упростить процедуру идентификации двигателя (при возникновении проблем с сотрудниками ГАИ).

Что такое минитрактор

Схема устройства минитрактораПод минитрактором понимают многофункциональную универсальную машину, которая может на некрупных земельных наделах выполнять достаточно большое количество задач по обработке сельскохозяйственного участка, посеву, уборке урожая и некоторые коммунальные работы. Среди выполняемых работ можно отметить: пахотные работы на легких почвах, культивация с боронованием, междурядная обработка посевов, разброс удобрения на участке, сенокос и скос травы, расчистка территории от снега, мусора, завалов, использование минитрактора в качестве бульдозера при засыпке ям и разравнивании поверхностей.

Еще одной задачей минитрактора является транспортировка различных грузов. При установке на трактор дополнительного оборудования (модулей) он может решать и ряд других задач: по деревообработке, бурению, копанию ям и т.д.

Компоновка минитрактора практически такая же, как и у его большего собрата, однако основным отличием является двигатель внутреннего сгорания меньшей мощности. Обычно на минитракторах применяются ДВС мощностью от 8 до 50 л. с. Однако минитрактор с двигателем ВАЗ (от автомобиля, например, ВАЗ-2106) будет более мощный, хоть и выполняется он в небольших габаритах. Согласно классификации государственной автоинспекции, тракторы, которые имеют мощность двигателя более 50 л. с., подлежат регистрации.

Сам по себе минитрактор выполнять вышеприведенные задачи не будет, для этого необходимо установить дополнительные устройства и агрегаты: косилки, плуги, грейдеры и т.д. Некоторые их тоже изготавливают самостоятельно, однако существуют и промышленные образцы подобных агрегатов.

При наличии двигателя и рамы с ходовой частью от автомобиля минитрактор своими руками можно сделать быстро и дешево. Однако если старого автомобиля нет, то имеет смысл приобрести минитрактор промышленного изготовления, их стоимость невысока, около 2-5 тысяч долларов. Практически столько же будет стоить старый автомобиль.

Однако если принято решение переделать старый автомобиль под трактор, то следует воспользоваться советами, приведенными ниже.

Заключение

Аналогичным образом изготавливают минитракторы из других моделей ВАЗа, единственное отличие заключается только в необходимости усиления рамы.

Следует помнить о том, что перед тем, как сделать минитрактор, нужно предварительно согласовать переделку с правоохранительными органами — это позволит избежать проблем в будущем.

Дополнительные статьи по теме:

  1. Как сделать ручной окучник для картофеля своими руками
  2. Как сделать прицеп для мотоблока своими руками
  3. Как сделать роторную косилку своими руками?

Рекомендации по выбору

Уже сделанный трактор

Мини-трактор лучше всего создавать из того, что надежно и недорого, а иногда совсем бесплатно. Выбранные узлы не нужно переделывать и дорабатывать, а значит, снижению прочности и надежности мини-трактора ничего не грозит. Переделанная же конструкция может выйти из строя.

Для создания самодельных тракторов можно использовать дешевые агрегаты от автомобиля УАЗ. Это будет главным достоинством транспортного средства. В случае поломки необходимые запчасти и подручные материалы для ремонта будет не так трудно найти.

Комплектующие УАЗа

Самодельный трактор состоит из важных составляющих элементов, от качества которых зависит работа машины в целом:

  1. мотор;
  2. трансмиссионное устройство;
  3. ходовая часть;
  4. рулевая часть;
  5. система сборки (подвесные средства и валы оборотов мощи).

Самодельный мини-трактор чаще всего колесный, реже — гусеничный, с мощностью двигателя от 10 до 50 лошадиных сил.

Двигатель, коробку передач, балки, ходовую часть желательно взять от одного автомобиля, чтобы легче и быстрее проходила их установка. При желании можно поэкспериментировать и попробовать провести стыковку агрегатов и узлов с разных машин. Это сложный процесс, но он может внести в работу с конструкцией мини-трактора интерес.

Самодельная модель

Нужно помнить, что для устойчивости мини-трактора ширина колес должна соответствовать определенному размеру, при этом учитывается, какие работы будет выполнять транспортное средство. Если это стандартные несложные операции, тогда ширина колеса может составлять 13 дюймов, если трудиться мини-трактор будет в поле, ширина должна быть 18.

Помните о том, что трактор должен быть устойчивым. Это качество зависит от того, какая коробка передач будет на самоделке. Она должна быть с повышенным числом передаточных значений. За счет этих чисел увеличивается тяговое усилие, которое не должно превышать 300 кг.

Заранее следует сделать чертеж системы охлаждения, чтобы точно знать, где должны находиться переходники. Изготовленный мини-трактор в работе может перегреваться. Чтобы этого не произошло, можно поставить радиатор с 2 секциями.

В случае выбора гусеничного трактора обращаем внимание на привод. Его устанавливают на заднюю часть гусеницы для нанесения меньшего вреда каткам. В ходе эксплуатации нужно помнить об очищении самих гусениц, так как при использовании заднего привода снег и грязь забивает их.

Начало сборки

Сцепное устройство состоит из следующих элементов:

  • коробка передач;
  • кожух сцепления;
  • фланец выжимного подшипника;
  • шуруп М6 крепежа фланца;
  • выжимной подшипник;
  • корзина с ведущим диском сцепления,
  • болт М 12х1,5;
  • хвостовая балка мотора;
  • маховик;
  • подшипник коленвала;
  • коленвал;
  • удлинитель коробки передач.
  • бампер (швеллер № 12);
  • передние лонжероны (патрубок 80x80x6);
  • передние поперечины (патрубок 80x80x6);
  • опора крепежа двигателя (патрубок 80x80x6, 2 шт.);
  • опоры крепежа кабины (балка № 8, 4 шт.);
  • стойки (труба 80x80x6, 4 шт.);
  • косынки (стальной лист s10, 6 шт.);
  • хвостовые лонжероны (труба 80x80x6);
  • хвостовые поперечины (труба 80x80x6);
  • плита автонавески рабочего инструмента (стальной лист s10);
  • кронштейн автонавески (стальной лист s10, 2 шт.)

Стальные водопроводные трубы диаметром 57 мм подойдут для сварной рамы прямоугольной формы, состоящей из пары лонжеронов и пары траверсов.

Уазовский мост для самоделки

Рулевая колонка тоже может быть позаимствована у УАЗа. Если ее расположить с правой стороны самодельного трактора, то закрепить рулевой механизм с рулевым приводом не составит никакого труда. Рычаг снимается со шлицов и в вертикальном положении насаживается обратно. Что касается поперечной рулевой тяги, то для ее изготовления потребуется газоэлектросварка. К уголкам размером 30 на 30 мм, которые скользят друг по другу, приваривают наконечники с шаровыми пальцами.

Уазовский задний мост также можно использовать в конструкции мини-трактора. На длинной полуоси отрезается фланец и в центре сверлится отверстие. Обрезок обрабатывается и вставляется в отверстие, снаружи обваривается, а лишнее отрезается.

Длинный чулок укорачивается. Используются две короткие полуоси. На срезе чулка снимается фаска, а соединение его сваривается. На место сварки накладывается суппорт для страховки от удара по хвостовику. С помощью V-образной конструкции мост мини-трактора прикрепляется к раме. Сама конструкция удобно расположится на штатных подушках заднего моста.

Для строительства мини-трактора можно использовать главный тормозной цилиндр авто УАЗ. Также можно взять рулевой редуктор, колонку и тягу. Для укрепления редуктора необходимо подготовить вваренную в конструкцию перекладину.

Рулевое управление от автомобиля УАЗ, а также продольная тяга, рулевая колонка и поперечная тяга, которая укорочена до 450 мм, — все это пригодится для конструкции мини-трактора.

Заслуживает внимания компоновка трансмиссии. Вслед за двигателем необходимо ставить корзину сцепления и коробку передач. Эти агрегаты от авто УАЗа отлично подойдут для мини-трактора (сборный узел: распределительная коробка с пониженной передачей).

На полу под сиденьем желательно расположить бензобак, аккумулятор и включатель «массы», подвесные педали от авто УАЗ. Топливо к бензонасосу будет поступать через фильтр тонкой очистки или отстойник, взятый с этого внедорожника.

Тормозами можно оснастить только задние колеса мини-трактора, а взять их тоже нужно с УАЗа.

Незаменимый помощник дачника — мини-трактор

Немало огородников и дачников обзавелись самодельными мини-тракторами. Маленький помощник справится со многими задачами: полить огород, вскопать грядку, перевезти урожай. Чтобы собрать такой мини-трактор, нужно совсем немного смекалки, старания и усердия, а самое главное — иметь необходимые технические знания и навыки.

Самодельные мини-тракторы до сих пор привлекают возможностью модернизации под индивидуальные требования. Можно договориться с предприимчивым соседом, который за небольшую плату окажет помощь в конструировании самоделки.

Использована коробка УАЗ

Агрегаты и узлы уазика могут послужить отличными донорами для конструирования различной техники. Самодельный трактор мало чем отличается от заводской конструкции. Он также может выполнять несколько функций, при этом его использование обходится в несколько раз дешевле, чем применение большого транспорта, да и затраты на горючее минимальны. Самоделка выгодна для всех, кто занимается сельскохозяйственными работами и хочет облегчить себе жизнь на дачах и приусадебных участках.

Еще один плюс использования мини-трактора — возможность присоединения к нему прицепа вместимостью более 200 кг. Прицеп поможет справиться с огородными работами быстрее и качественнее.

Виды навесного оборудования для минитрактора

Чтобы расширить диапазон возможностей данное устройство можно дополнительно оборудовать навесным оборудованием, которое можно изготовить при помощи имеющихся подручных средств.Так, самостоятельно изготовить можно следующие виды навесного оборудования:

  • разнообразные сеялки;
  • окучники и рыхлители почвы;
  • плуги одно-, двухкорпусные, обычные и поворотные;
  • секционные сенокосилки для заготовок кормов;
  • картофелесажалки и многое другое.

Со временем такой минитрактор, можно усовершенствовать, установив дополнительные приспособления, которые повысят комфортность и безопасность управления. Кроме того, такой агрегат по своим индивидуальным конструктивным и функциональным особенностям во многом опередит большинство заводских моделей.

Причины создания техники своими руками

Многие хозяйственные люди предпочитают создавать минитракторы самостоятельно по нескольким причинам:

  • магазинный аналог слишком дорого стоит;
  • характеристики не обеспечивают необходимого уровня проведенных работ
  • магазинные тракторы не маневренные или не подходят по размерам.

Долгое производство самодельных минитракторов в домашних условиях подтверждает, что вопреки многим трудозатратам, самодельная техника получается маневренной, быстрой, прочной, многофункциональной и экономичной.

Разновидности самодельных тракторов

Считается, что минитрактор самостоятельно сделать может не всякий желающий, однако, если поставить цель, то все возможно. Схема и чертежи будут большим подспорьем в работе тем, кто задался вопросом как самому собрать самодельный мини трактор. В Сети достаточно инструкций, которые пошагово могут проиллюстрировать процесс создания. В основе конструкции могут лежать запасные части от старых культиваторов, «Москвичей», мотоциклов..

Есть несколько разновидностей тракторов, выполненных собственноручно:

  1. Конструкции универсального свойства, изготовленные для того, чтобы эффективно обрабатывать землю, косит траву, убирать заснеженные территории и многое другое. Такие конструкции можно использовать на территориях 5-7 га.
  2. Конструкции мини-тракторов, способных обрабатывать до 1-2 га территории, но эффективно. Их внутреннее устройство оптимально подходит для обеспечения и организации ухода за газонными территориями.
  3. Конструкция типа «райдер», представляющая собой минитрактор, который используют для раскладывания удобрений, опрыскивания растений ядохимикатами, уборки мусора с пешеходных территорий. Это самый просто вид минитрактора и создать собственноручно его будет просто для каждого.

Начало работ

Постройка трактора начинается с изготовления рамы, на которой и будут крепиться важные детали механизма. После подготовки рамы берутся стойки. Их приваривают к раме по углам. Далее мы устанавливаем передний мост.

В качестве двигателя применяют в различных сельскохозяйственных, строительных и дорожных машинах УД-25 двухцилиндровый. Но, чтобы использовать полный привод может понадобится дизель, зид.

Наилучшей конструкцией трансмиссии для мини-трактора будет полный привод. Полноприводная конструкция будет передавать крутящий момент, который создается двигателем на все колеса техники. Такой привод используют для вездеходов.

Также неотделимой частью нашей конструкции является ВОМ, или же вал отпора мощности, предназначенный именно для сельскохозяйственной техники. ВОМ содержит в себе такие элементы как тяга и рычаг, колпак и корпус, фиксатор и его пластина, шестерня и поводок.

Собрать трактор самостоятельно на дизеле, или мототрактор, или даже если это будет самоделка с двигателем Лифан – задача далеко не из простых. В Сети предостаточно материалов с описанием процесса создания минитракторов. К сожалению, умельцы часто не придают этой информации большого значения. и совершенно напрасно. Горе-мастера считают основным этапом – практику: они просто берут имеющиеся детали и начинают в режиме импровизации соединять их, сваривать и решать возникающие трудности по мере их появления. В этом и есть основная ошибка тех, кто не может считать себя профессионалами с сборке минитракторов, но озадачен тем, как сделать технику самостоятельно..

Начинающим и любителям не обойтись без теоретической базы и предварительных расчетов и чертежей, даже если трактор планируется сделать из двигателя от мотоблока. Не допускайте этой ошибки.

Сельскохозяйственная сфера включает в себя большое количество работ, но основным, все таки, является обработка земельных владений. Это неудивительно, ведь созревание будущего урожая напрямую зависит от того, насколько хорошо вспахана и удобрена земля.

С этим комплексом работ прекрасно справляется минитрактор — технический агрегат, имеющий достаточно компактные габариты, при этом отличаясь достаточно высокой мощностью. Применяются данные агрегаты повсеместно — и в частном хозяйстве, и в крупных фермерских хозяйствах и агропромышленных комплексах.

Если в последних, в основном, используют различные модели от российских (см. ), либо зарубежных компаний, то на бытовом уровне, чаще всего, встречаются минитрактора, изготовленные из подручных средств. Конечно, нужны определенные навыки, чтобы сборка самодельных агрегатов прошла успешно, ведь это довольно непростое дело.

Однако, учитывая тот факт, что затраты на изготовление будут куда меньшими, чем за покупку магазинного варианта (даже ), многие уже задумываются о самостоятельном конструировании минитрактора.

В зависимости от того, что будет взято за основу будущего самодельного минитрактора, выделяют несколько разновидностей подобных устройств, а также те виды работ, которые они способны выполнить:

  • Если взят достаточно мощный двигатель (например, от старого «Жигули»), то такой агрегат может осуществлять практически весь комплекс работ, характерных для сельской местности. Речь идет о вспахивании земельных угодий, окучивание, избавление почвы от сорняков, формирование грядок, посадки картофеля с помощью и т.д. На фото двигатель:
  • Если предусмотреть к ним дополнительное оборудование, то такие устройства могут скашивать траву для заготовки сена, расчищать снег (см. ) и подметать тротуары. Такие минитракторы способны обрабатывать территорию, площадь которой составляет не менее 6 гектаров.
  • Второй тип самодельных минитракторов изготовлен на базе относительно мощного двигателя, который идентичен мощности мотоблока. Такие агрегаты способны обрабатывать территорию площадью в 2 гектара, осуществляя практически тот же перечень работ.
  • Единственное, мощности самодельного минитрактора не хватит для вспашки сложных участков земли и транспортировке больших грузов.
  • Последний тип самодельных минитракторов представляет собой устройство для орошения заранее обработанной почвы различными удобрениями, а также опрыскиванием химикатов от вредителей.

Как мы видим, эффективность самодельных минитракторов в работе довольно различна, в зависимости от силовой мощности используемого двигателя.

В принципе, по области применения, самодельный вариант практически ничем не отличается от купленного в магазине.

Как и у него, основной заботой для такого агрегата является работа на земельном участке, где осуществляется вспахивание и культивирование почвы.

Если вас интересуют бензопилы Хускварна, то на нашем сайте вы найдете много информации об этом инструменте. Инструкция по эксплуатации — в .

Перед начал использования бензопилы, обязательно ознакомьтесь с особенностями настройки и регулировки бензопил марки Хускварна в

Если же поломка случилась, то о причинах неисправностей и способах их починки вы сможете узнать

Преимущества и недостатки

Безусловно, рабочие показатели фирменного минитрактора значительно выше, чем у самодельных аналогов. Но никто и не пытался доказать, что самодельные агрегаты сопоставимы в своих технических данных с покупными вариантами.

Изначально подразумевалось, что минитракторы, сделанные своими руками, будут использоваться на довольно небольших площадях, где их рабочей мощности будет достаточно. Именно поэтому, использование самодельных агрегатов на бытовом уровне становится все более целесообразным.

К прочим преимуществам таких минитракторов относят:

  • Довольно неплохие показатели качества вспахивания земельных угодий. При этом, они во многом сопоставимы с глубиной проникновения, которые показывают минитракторы, приобретенные в магазинах.
  • Достаточно простая эксплуатация подобных устройств, не требующая особых знаний и умений.
  • Изготовление самодельного агрегата будет куда более дешевым вариантом, чем покупка нового минитрактора.
  • Более упрощенный ремонт, ведь вы сами изготавливаете минитрактор из доступных деталей, которые потом можно без труда достать.
  • Возможность внесения изменений в конфигурацию устройства, добавляя что-то новое. В покупных минитракторах это недопустимо, ведь можно полностью вывести агрегат из строя.

Однако, не стоит думать, что изготовление минитрактора в домашних условиях является безоговорочно выгодным предприятием. У данного способа есть и свои недостатки:

  • Достаточно кропотливый процесс сборки, ведь это требует наличия определенных технических знаний, а также умения работать со сварочным аппаратом и т.д. Иными словами, изготовление минитрактора своими руками подойдет далеко не каждому.
  • Поиск нужных запчастей и деталей также является дополнительной сложностью в данном вопросе.

Как мы видим, преимуществ все-таки больше, что говорит о верном принятии решения — изготавливать самодельные минитрактора своими руками. Наверно главным плюсом является хорошая экономия средств, ведь вопрос цены становится определяющим в последнее время.

Производя различные работы на самодельном минитракторе, важно понимать тот факт, что это агрегат любительского уровня, поэтому не стоит ставить перед ним очень сложные задачи.

Большое значение имеет двигатель, который вы используете в конструкции. Зачастую, это уже не новый мотор, взятый от старого автомобиля, либо приобретенный «с рук». Подобные двигатели, в основном, не имеют внутреннего регулирования количества оборотов при разной нагрузке.

Поэтому, приходится иногда отпускать педаль газа, чтобы мотор не перегревался от усилий.

  • отжать сцепление;
  • нажать на педаль газа до упора;
  • крутить стартером на протяжении 7-10 секунд, после чего мотор должен завестись.

Делая такие нехитрые манипуляции, можно добиться того, что двигатель будет запускаться без каких-либо проблем, в течение дня. Стоит также помнить, что в зимнее время повышается расход горючего, практически на 30%. Этот факт нужно иметь в виду, планируя продолжительные работы на морозе, например, при вывозке дров из леса.

Лучше всего запастись лишней канистрой, чем застрять среди сугробов, вдали от людей.

Примеры сборки

Сборка самодельного минитрактора может осуществляться разными способами, поэтому нет какой-то определенной методики, а также параметров, следовать которым нужно неукоснительно.

Нет, конструирование минитрактора своими руками — это довольно свободное занятие, где можно подключить свою фантазию и собственные наработки.

Однако, будет не лишним описать пару способов, чтобы картина более наглядной.

Вообще, порядок действий примерно следующий:

  • На первоначальном этапе происходит конструирование рамы будущего самодельного минитрактора. Сваривают её из металлического швеллера. Как правило, берут №5, либо №9. Из данного материала изготавливаются две полурамы, которые соединены между собой карданными валами, используемые в большегрузных автомобилях.
  • Конструкцию можно сделать и из цельной рамы. Для этого нужно взять два лонжерона (правая и левая часть рамы), а также два траверса (зад и перед рамы). В данном случае, швеллер номер 10 будет использован для изготовления лонжеронов, а номер 12 и 16 — для изготовления траверсов.
  • Поперек устанавливается металлический стержень.
  • Далее на раму устанавливается двигатель. Выбор мотора лежит полностью на том человека, который задумал самостоятельную сборку агрегата. Часто, для этих целей используют двигатели УД-2, МТ-9 и т.д. Взять двигатель можно и от обычного мотоцикла советского производства.
  • Коробку передач нужно разместить на раме таким образом, чтобы она была развернута к человеку, управляющему минитрактором. Кстати, для этих целей прекрасно подойдет коробка, взятая из старого ГАЗ-53.
  • В качестве руля можно использовать рулевое управление, установленные на старых машинах.
  • К задней части рамы нужно приварить фаркоп, который позволит присоединять дополнительное навесное оборудование.

  • Колеса нужно подбирать в зависимости от того типа работ, которые вы хотите выполнять на самодельном агрегате. Для вспахивания почвы, размеры колес должны быть не менее 24 дюймов в диаметре. Для обычной перевозки грузов достаточно и 15 дюймов.

На завершающем этапе производится регулировка всех рабочих узлов, натяжка ремней и т.д. Конечно, инструкция довольно схематична, но в сети можно найти самое свежее видео бесплатно, где минитрактора своими руками изготавливают различные мастера, давая точные советы, а также весь процесс наглядно.

Подробнее о самодельном минитракторе смотрите на видео:

Отдельного упоминания заслуживает изготовление . При этом, нет принципиальной разницы, какой именно агрегат использовать, ведь их конструкция практически идентична. Рассмотрим приблизительный алгоритм наших действий:

  • Начинать мы также будем с изготовления рамы. При этом, мы всего лишь дополняем ту часть конструкции, которая будет расположена над второй парой колес, ведь передняя часть будет нашим мотоблоком.
  • Строгих рекомендаций в диаметре металлических труб, используемых для изготовления рамы, нет. Все составные часты разрезаются болгаркой, а затем свариваются между собой, формирую заднюю часть рамы. Посередине можно добавить дополнительный брус из металла, чтобы конструкция была более надежной.
  • Сзади приваривается фаркоп, обеспечивающий работу с прицепом и прочим навесным оборудованием.

  • Для передних колес можно приобрести ступицы. Крепится они будут к металлической трубе, подходящей по ширине к передней части минитрактора.
  • В центре нужно просверлить отверстие сквозного типа, через которое осуществляется крепление к раме. Редуктор червячного типа, в данном случае, будет соединять тягу от руля и раму.
  • Далее нужно установить заднюю ось. Делается это на подшипники, которые установлены во втулки. Далее устанавливается шкив, обеспечивающий подачу работы от используемого мотора.
  • Колеса можно подобрать от старых автомобилей, либо от тех же мотоблоков.
  • На заключительном этапе производится установка тормозной системы, а также регулировка всех рабочих узлов.

Стоит помнить, что в случае выезда на проезжую часть данного самодельного устройства, вас могут остановить сотрудники дорожной инспекции на наличие у вас прав на управление данным транспортным средством.

Поэтому, если вы планируете выезжать на самодельном минитракторе на проезжую часть, нужно позаботиться о получении водительских прав в ГИБДД.

Балка (мост) для минитрактора — своими руками, чертеж, видео

Передняя балка на минитрактор своими рукамиБалка или мост для минитрактора служат основой, к которой крепятся системы и элементы машины. Передняя балка на мототрактор служит опорой для различных узлов, а также к ней крепятся колеса. Зачастую мастера сталкиваются с балкой во время переоборудования мотоблока, когда приходится делать своими руками переднюю балку минитрактора.

Задний мост минитрактора — это та же система, на которую прикрепляются колеса и некоторые элементы общей системы. Во время конструирования минитрактора, многие берут передний и задний мосты у старых автомобилей. В итоге конструкция получается прочной и надежной. Если у вас есть необходимые инструменты и материалы, а также знания по теме устройства техники, тогда вы можете сделать эти детали и самостоятельно из того, что есть в вашем гараже.

Как сделать мост для минитрактора?

Минитрактор — это техника, которая помогает человеку в процессе обработки земли, перевозки грузов, посадки растений, ухода за ними, и многое другое. Заводская техника сегодня стоит достаточно дорого, не каждый готов или имеет возможность тратить такие средства. Но в селах часто можно встретить старые автомобили, которые уже вышли из строя, но все еще есть надежда подарить им вторую жизнь. Именно из них мастера берут разные детали, чтобы сконструировать минитрактор-самоделку.

Создание минитрактора включает конструирование ходовой части. В первую очередь необходимо установить мосты. Задний мост для минитрактора своими руками лучше делать таким же, как и передний. Это избавит вас от подбора придаточного числа, что сделать без должного опыта и знаний невозможно.

Ходовую часть можно взять из Жигулей, но при этом необходимо будет ее укоротить. Вам не придется дополнительно искать редуктор, который уже имеется на заднем мосту. Как сделать балку на минитрактор? Поперечную балку можно сделать из трубы с квадратным сечением, или же из металлических уголков.

Ведущий передний мост отличается от неведущего тем, что он передает крутящий момент от кардонной передачи на колеса. С его помощью осуществляется поворот машины, стабилизация управляемых колес, передаются толкающие усилия от ведущих колес к остову трактора. Как сделать ведущий передний мост на минитрактор? Вам понадобится:

  1. Балка;
  2. Главная передача. Состоит из конических шестерен. Служит для увеличения крутящего момента и передачи его к дифференциалу;
  3. Дифференциал. Служит для передачи мощности;
  4. Колесные редукторы. Необходимы для увеличения крутящего момента, который передается от главной передачи к колесам. Также они нужны для осуществления поворота.

Все эти элементы можно взять из старых машин или другой техники. Если вы не знаете, как рассчитать передний мост, то эту формулу с подробным описанием и разъяснением вы можете посмотреть в видео.

Как укоротить мост от ВАЗ?

Порой чтобы сконструировать самодельный минитрактор, необходимо укоротить зданий мост. Рассмотрим этот процесс на примере заднего моста от ВАЗа. Укороченный мост необходим для того, чтобы уменьшить ширину колесной базы, тем самым сделав машину более компактной и маневренной.

Для начала необходимо тщательно подготовиться к процессу. Вам нужна сам задний мост, а также инструменты, как сварочный аппарат, болгарка, тиски, отвертки, и другое.

Обрезать задний мост ВАЗ нужно следующим образом:

  1. Нужно отрезать чашку для пружины;
  2. Концевой фланец необходимо вытащить;
  3. Вынутую ось нужно замерить, сравнив с чертежом, и отрезать болгаркой по размеру;
  4. На кончике отрезка поставьте засечку, которая будет служить отметкой для проточки «под папу»;
  5. Внутри чашки просверлите отверстие;
  6. После этого полуось стыкается одна в одну и сваривается;
  7. Последний этап — готовая полуось вставляется в мост. С обеих сторон делается сварка.

pro-traktor.ru

Как укоротить задний мост минитрактора? Этапы работы

Как укоротить задний мост минитрактора?

При изготовлении мини трактора на основе ВАЗ мастера сталкиваются с тем, что нужно укорачивать заднюю балку. Но вот как это сделать правильно мало кто знает. Сейчас мы поможем разобраться в этой проблеме и дадим несколько советов, как укоротить мост от ВАЗ.

Создавая самодельный минитрактор, мы сталкиваемся с тем, что необходимо обрезать задний мост ВАЗ для того чтобы изменить ширину колеи. Поскольку чаще всего редуктор находится по центру, то приходится балку укорачивать с обеих сторон. Но прежде чем преступать к такой работе, стоит обязательно иметь чертеж и схему будущей конструкции. В ней мы указываем все размеры каждой детали, все замеры. Пользуясь этой схемой, вы сможете легко и качественно сделать нужный механизм.

Этапы работы:

  1. В первую очередь необходимо отрезать чашку для пружины и вынимаем концевой фланец.
  2. С помощью болгарки отрезаем часть вынутой полуоси. В конце делаем заческу, где сделаем проточку под «папу».
  3. Теперь надо просверлить отверстие внутри чашки.
  4. Делаем стык полуосей и привариваем их согласно меткам в чертеже.
  5. Загоняем в мост готовую сваренную полуось.
  6. Свариваем все с обеих сторон.

Помимо проблемы этой распространенной проблемы, многие также сталкиваются и с такой задачей, как рассчитать передний мост и как сделать ведущий передний мост на минитрактор.

Чтобы сделать переднюю балку своими руками можно воспользоваться схемой, которая станет отменным помощником для создания этой конструкции. За пример можете взять чертеж представленный ниже

Как сделать балку на минитрактор?

Чтобы сделать переднюю балку минитрактора своими руками нужно взять толстостенные буровые трубы толщиной в 8 мм. Делаем поворотный механизм боковых стоек с помощью подшипниковых узлов ступицы ВАЗа. Вертикальную поворотную стойку оси, которая выходит через подшипники, закрепляем гайкой ступицы. Конструкция поворотной части оси, той, что находится внизу, состоит из металлической вертикальной трубы, которая зафиксирована на сварке длинными поворотными пальцами. Далее устанавливается поперечная рулевая тяга, ее можно взять от ГАЗ-53. Также на вертикальных поворотных трубах крепим рулевые рычаги. Привариваем косынки, они сделают оборудование более мощным. Устанавливаем крылья колес на вертикальные стойки. В перекладину рамы нужно приварить кулак, который закрепляется гайками.

Задний мост для минитрактора своими руками

Для работы понадобится уже укороченный мост. Его часть от которой отрезан кусок соединяется сваркой. Предварительно нужно будет сделать фаску в месте сварочного стыка. Проваривать нужно не единожды, а до тех пор, пока не получится качественный шов. После место сварки нужно разогреть до вишневого цвета и остужается. Такая процедура поможет снять внутреннее напряжение в месте сварки. Мост закрепляем к раме через штатные места с помощью V-образной конструкции.

Похожие записи

comments powered by HyperComments

sadovij-pomoshnik.ru

Укорачивание моста УАЗ для минитрактора (20 фото)

укорачивание моста

Небольшой фотоотчёт: как укоротить мост от автомобиля УАЗ для постройки минитрактора.

При изготовлении самодельных минитракторов приходится укорачивать под колею стандартные мосты от автомобилей, обычно это ВАЗ классика, Москвич, или УАЗ. Предлагаем посмотреть фото укорачивания мостов от УАЗа, возможно это Вам пригодится при постройке самодельного минитрактора.

Колея без тормозных барабанов.

Укороченные мосты теперь можно использовать для постройки самодельного минитрактора.

мосты самодельного трактораАвтор: Радик Гарипов.

Популярные самоделки из этой рубрики

Понравилась самоделка, поделитесь в соц. сетях

avto-samodelkin.ru

Как сделать самодельный минитрактор?

Для создания подобной аграрной техники специалисты из народа используют несколько методик, но в большинстве случаев все происходит примерно так:

1. Создается рама из обычного прокатного швеллера при помощи сварки заранее подготовленных элементов, в которые входит передняя и задняя траверсы и два лонжерона. Передняя часть данной техники выполняется более узкой, в результате рама получает трапециевидную форму. После чего в раме производятся отверстия для установки других частей корпуса и механизмов.

Самодельные минитрактора своими руками видео Самодельный минитрактор — рама

2. При помощи сварки по углам рамы крепятся уголки, которые играют роль стойки, а также служат подрамником и соединяются между собой в верхней части. Далее на раму монтируется задний мост, ну а при конструировании полноприводной техники необходимо будет установить еще и передний мост.

3. Монтируется двигатель необходимой мощности, в роли которого обычно используют различные силовые агрегаты с мотоблоков (см. Минитрактор из мотоблока Нева ), мотоциклов (даже оппозитных).

Самодельные минитрактора своими руками видео Самодельный минитрактор своими руками — установка двигателя

4. На раму монтируется коробка передач, которая должна быть обязательно развернута к водителю, для того чтобы управление было максимально комфортным и простым.

Самодельные минитрактора своими руками видео Установка коробки передач на конструкцию мини-трактора

5. Далее монтируются различные составляющие рулевого управления. В основном используют обычные рули от отечественных автомобилей, в некоторых случаях даже от мотоциклов.

6. Обязательно необходимо приварить фаркоп, который впоследствии пригодится не только для прицепа, но и для некоторого дополнительного оборудования, такого как: сеялка, косилка или плуг.

Самодельные минитрактора своими руками видео Сцепка самодельного минитрактора

7. Заключительным моментом в работе по созданию мини трактора является монтаж тормозной системы, установка бака, ну и, конечно же, электрическая часть.

Чертежи самоделок

Ну, а определиться с выбором, любому желающему человеку сконструировать подобную технику помогут чертежи самодельных минитракторов, которые есть в интернете.

Чертежи конструкции минитратора с двигателем расположенным в задней части рамы для исключения необходимости использовать транмиссию и карданный вал.

Варианты самоделок и видеоинструкции по сборке минитрактора — смотрите также в этой статье

Преимущества минитрактора

Надежный помощник на приусадебном участке — минитрактор из мотоблока.

К достоинствам минитракторов, собранных своими силами, следует в первую очередь отнести их цену, которая гораздо ниже стоимости готового адаптера для мотоблока. Помимо этого, подобный агрегат занимает не много места, так что не придется строить для него отдельный гараж. Самодельный минитрактор, к тому же, довольно экономичный, работает на паре литров недорого топлива и развивает скорость до 30 км/ч. Да и запчасти для такого агрегата можно купить практически везде и довольно дешево.

Собранный своими силами минитрактор, при установке шин с глубоким протектором, имеет высокую проходимость и отличное сцепление с грунтом. А довольно компактные габариты дают возможность работать даже на приусадебных участках, густо засаженных деревьями, и придомовой территории не причиняя ущерба асфальту или тротуарной плитке.

В принципе, любой мастер, который дружит с техникой и инструментами, вполне может сделать своими руками для домашнего хозяйства мощный и надежный агрегат. Однако перед тем как конструировать минитрактор, потребуется изучить большое количество различных чертежей и схем, прочитать много полезной литературы и посмотреть видео. Сразу стоит сказать, что какой-то универсальной схемы и чертежей, для того, чтобы собрать самодельный минитрактор из мотоблока, нет. Дело в том, что агрегаты разных производителей отличаются своей конструкцией, мощностью и многим другим.

Производители выпускают готовые адаптеры с сидением, позволяющие преобразовать своими руками некоторые модели мотоблоков в минитрактор. К таким агрегатам относится «Нева», «Зубр», «Арго» и большинство китайских моделей. Если же для мотоблока подобный адаптер не предусмотрен, то придется изготовить его самостоятельно. Такой способ потребует больше времени, чем установка адаптера, но меньше финансовых затрат.

Помимо мотоблока «Нева» или «Салют» понадобится:

  • пара подходящих колес;
  • металлические трубы и уголки, а также лист нержавейки;
  • дрель и сварочный аппарат;
  • удобное кресло;
  • набор инструментов;
  • навесное оборудование.

Выбор соответствующего мотоблока

Мотоблок «Нева» отличный выбор для переделки

В первую очередь для минитрактора следует выбрать подходящую модель мотоблока. Необходимо учесть все важные параметры:

  • мощность;
  • вес;
  • тип двигателя;
  • размер плуга;
  • стоимость и производителя.

Теперь рассмотрим каждую из этих характеристик подробнее.

Мощность. Этот параметр непосредственно зависит от площади, которую предполагается обрабатывать. Соответственно, чем больше участок, тем выше должна быть мощность мотоблока.

Вес агрегата зависит от вида обрабатываемой почвы. В том случае, если для твердой почвы выбрать легкий плуг, то будущий минитрактор вряд ли справится со своим предназначением. То есть, чем сложнее в обработке грунт, тем тяжелее нужен мотоблок, и наоборот.

Бензиновый двигатель работает тише дизельного, и к тому же благодаря невысокой компрессии даже в сильные холода запускается с полуоборота. Однако дизель экономичнее, имеет более сильную тягу и стабильность оборотов. Также дизельный двигатель лучше справляется с тяжелыми грунтами и большими площадями.

Чтобы определиться с размером плуга следует учесть глубину будущей обработки, свое терпение и готовность к физическим нагрузкам. Оптимальнее всего выбрать разборную модель с возможностью регулировки по ширине. Это позволит своими руками настроить плуг в соответствии с конкретной ситуацией.

Стоимость и производитель тесно связаны между собой. В том случае, если имеется возможность, то можно приобрести мотоблок от известного производителя. Однако при ограниченном бюджете можно обойтись более дешевыми китайскими аналогами, хотя за меньшую цену получаете и более низкую производительность. Оптимальным выбором являются мотоблоки российских производителей – «Салют», «Фаворит», «Тарпан» или «Нева».

Пошаговая инструкция

Кинематическая схема минитрактора.

В первую очередь следует разработать кинематическую схему будущего минитрактора. Если есть определенный опыт, то можно сделать такую схему самостоятельно или же найти в интернете уже готовые варианты. Вполне возможно, что посчастливится найти чертежи переделки минитрактора из мотоблока для конкретной модели. Это существенно облегчит дальнейшие работы. К тому же в интернете можно найти много видеоматериала, где показывается сборка и модернизация таких агрегатов.

Самодельные минитрактора своими руками видео Чертеж №1 Самодельные минитрактора своими руками видео Чертеж №2 Самодельные минитрактора своими руками видео Чертеж №3

Рама и кузов

Материалом для изготовления рамы могут послужить металлические уголки и трубы. Для крепления различных элементов лучше применить болтовое соединение, а значит, потребуется наличие дрели, а также сварочного аппарата, так как без сварки не обойтись. Желательно добиться оптимального соотношения веса рамы и прочности.

Делать кузов или нет — это уже дело вкуса. Однако с кузовом минитрактор, собранный своими руками, например, на базе «Невы», выглядит более презентабельней, да и к тому же создается дополнительная защита от грязи водителя и различных узлов. Для кузова лучше всего использовать нержавейку.

Сиденье и рулевая

После того как кузов изготовлен и навешен, требуется установить водительское сиденье. На автомобильных разборках можно найти переднее сиденье от старой легковой машины. Главное, чтобы кресло было удобным.

Установку руля своими руками следует проводить после того, как будет прикреплено сиденье, чтобы настроить угол наклона и высоту. Можно выбрать принцип рулевой системы, используемой на картингах. Конечно, придется сделать тяги прочнее и короче, поскольку в таком случае усилия будут намного выше. Так же как и кресло, руль можно найти на авторазборках.

Выбор колес и покрышек

При желании сэкономить можно взять колеса от старого легкового автомобиля, но это создаст определенные трудности при эксплуатации уже готового минитрактора. Для такого агрегата передние колеса в идеале должны иметь диаметр 12-14?. При меньшем диаметре минитрактор будет зарываться «носом» в землю, а при большем – управление будет затруднено. Покрышки, соответственно, подбираются под размер установленных на минитракторе колес.

Установка рычагов

Самодельные минитрактора своими руками видео Чтобы сделать управление более удобным, необходимо предусмотреть установку рычагов, которые будут отвечать за тормоз и сцепление. Самый простой способ, который предпочитают многие умельцы – это устройство тросикового привода, сообщающегося с моторным блоком.

После того как переделка завершена, можно выкрасить минитрактор и установить навесное оборудование. Покраска позволит предотвратить появление коррозийных процессов. Перед использованием готового минитрактора на базе мотоблока «Нева» или «Салют» требуется его обкатать. Это нужно для того, чтобы проверить функционирование всех узлов и своевременно устранить все возможные неполадки. Будет обидно, если агрегат, собранный своими руками, выйдет из строя в первый же день работы. Если обкатка прошла нормально — можно прикрепить прицеп, и обкатать минитрактор еще раз.

На видео показано как функционирует готовый самодельный минитрактор.

Когда минитрактор полностью собран и обкатан, его в дальнейшем можно сделать более «навороченным», так — как позволит воображение и финансовые возможности. Можно установить навес, фары, гидравлическую систему и так далее. В результате вы получили агрегат, который позволит значительно облегчить обработку приусадебного участка и по комфортности превышающий заводские модели.

Самодельный минитрактор своими руками: сборка, видео примеры

Самодельные минитрактора своими руками видеоВладельцам фермерских хозяйств или домика в деревне не обойтись без землеобрабатывающей техники. Однако купить минитрактор может позволить себе не каждый. В качестве альтернативы народные умельцы изготавливают трактора своими руками. При наличии достаточной доли умения и небольшой мастерской можно создать отличную самодельную технику для работ на земельных участках.

Понравилась статья? Поделиться с друзьями:
Журнал про спецтехнику flynice.ru. Обзоры спецтехники